242 000 €

Malaunay – Maison 95 m² plain-pied terrain 600 m² 242 000€

🏡 À VENDRE – Maison de plain-pied 95 m² + garage – 4 chambres – Malaunay – 242 000 €

Une belle opportunité pour vivre à Malaunay, commune dynamique, verdoyante et proche de Rouen, alliant nature, services et cadre familial.

📍 1. Le terrain – plus de 600 m² à Malaunay Situé à Malaunay, sur un terrain viabilisé de plus de 600 m², ce projet bénéficie d’un environnement calme, résidentiel et idéal pour la vie de famille. Malaunay offre un cadre privilégié, tourné vers la nature (voir la ville :  https://www.malaunay.fr/Decouvrir-s-installer/Tourisme-a-Malaunay/Parc-municipal-G.-Pellerin), tout en restant proche des commodités.

Atouts du terrain :

✔️ Terrain viabilisé : eau, électricité, télécommunications

✔️ Quartier calme et agréable

✔️ Grand espace permettant de multiples aménagements : terrasse, jardin, jeux enfants, potager, etc.

✔️ À proximité : écoles, commerces, activités sportives et culturelles

✔️ Accès rapide à Barentin (10 min) et Rouen (15 min)

✔️ Environnement naturel : Parc Georges Pellerin, animations, sentiers, faune et flore

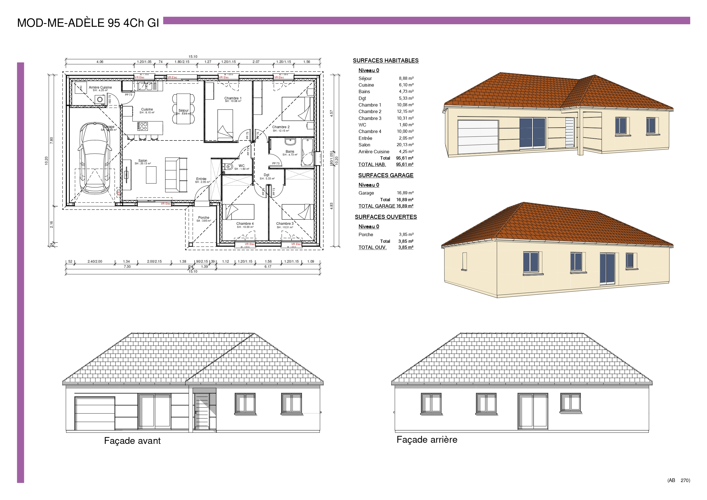
🏠 2. La maison – Plain-pied 95 m² + garage intégré

Cette maison de plain-pied offre un confort optimal et une distribution pensée pour la vie de famille.

Caractéristiques de la maison :

• 4 chambres lumineuses • Pièce de vie spacieuse avec cuisine ouverte

• Salle de bains moderne

• Garage intégré • Conforme RE2020 : excellente isolation + chauffage économique

• Matériaux et finitions de qualité

💶 Prix du projet : 242 000 € Ce prix comprend :

• La maison prête à décorer • Le terrain de plus de 600 m² • Les frais annexes liés au projet

Le prix est indicatif, établi pour une construction sur terrain plat et sans contraintes particulières. Sous réserve d’étude de ce terrain et des règles d’urbanisme (PLU, accès, réseaux, nature du sol, dénivelé). Les éventuelles adaptations techniques pourront entraîner une révision du prix après analyse complète du projet et des options choisies.

📞 Contactez-moi – Agence de Barentin 

☎️ 07 44 86 37 12

📧 barentin@cleverte.fr

 Construisons ensemble votre projet.

Modèle de maison Adèle de 95m² avec 4 chambres et garage

Malaunay Terrain 500 m² 4 Chambres Plain-pied Garage