279 900 €

Maison contemporaine RE2020 de 125 m² avec 4 chambres et garage à Malaunay

Cette maison résolument contemporaine de 125 m² habitables offre un aménagement fonctionnel et optimisé, idéal pour une famille.
Devenez propriétaire à Malaunay et découvrez ce projet de construction, alliant confort, modernité et performance énergétique.

 découvrez ici la commune de Malaunay

📍 Le terrain Situé à Malaunay à15Km de Rouen, aujourd'hui territoire à énergie positive pour la croissance verte, est une ville au riche passé industriel et culturel.
Ce terrain de 500 m² offre vous la sérénité de la campagne à 10 minutes de Rouen et de belles possibilités d’aménagements (Balançoire, trampoline ,potager, espace barbecue)
Viabilisé prêt pour la construction.

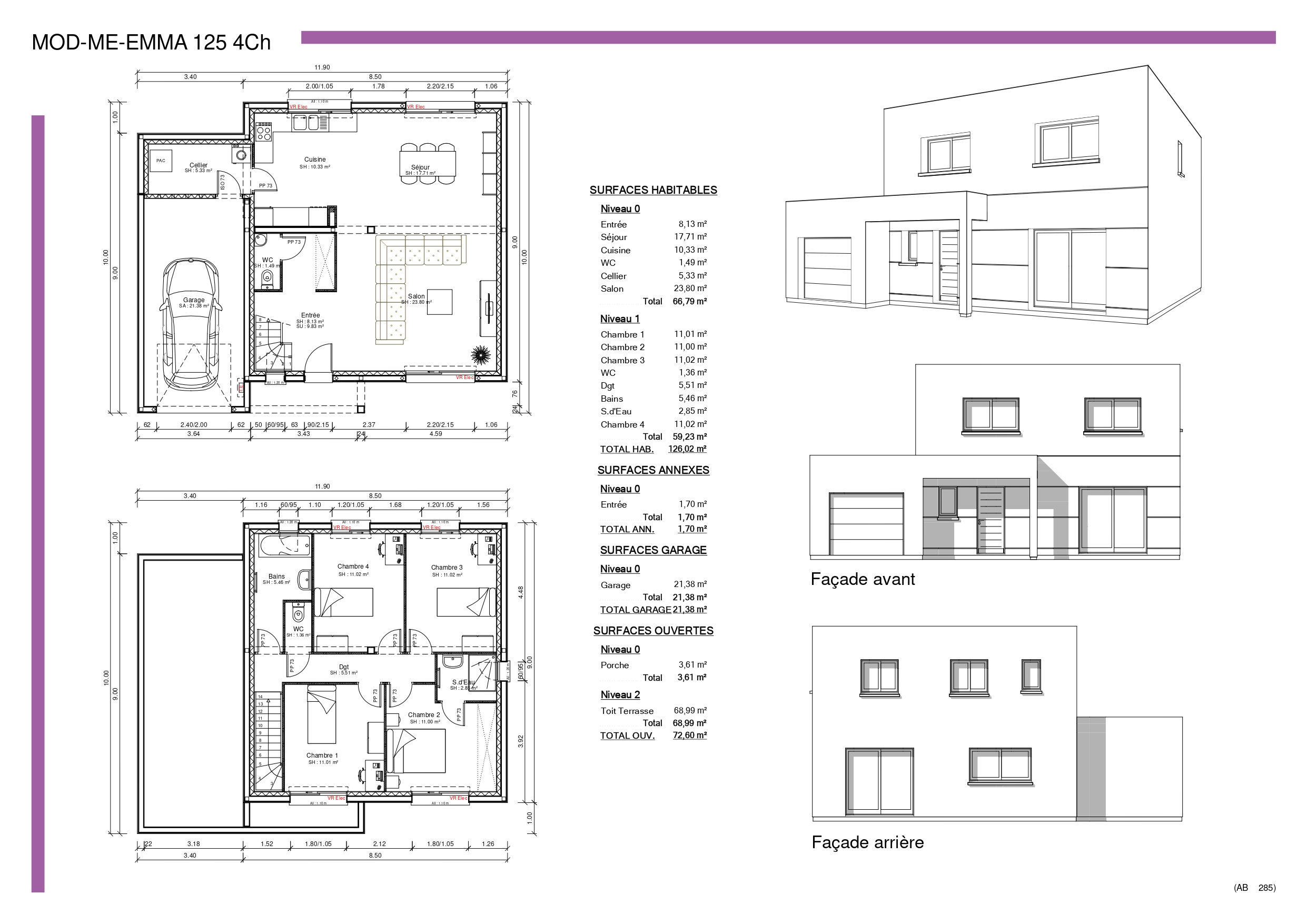
🏠 La maison Emma 125.

Nous vous proposons le modèle Emma une maison au design moderne à toit plat 125m², habitable comprenant : 
• Le premier niveau est entièrement dédié aux pièces de vie bel espace lumineux avec cuisine ouverte de 60m²
• 4 chambres (dont une suite parentale avec douche)
• Garage inclus et cellier.
• Conforme à la RE2020 (isolation performante, chauffage économique par pompe à chaleur, confort toute l’année)

Avec les maisons Cléverte, vous avez la possibilité de personnaliser votre intérieur.

💶 Prix estimatif du projet : Estimation de 279900 €
• La maison prête à décorer, construite selon les normes en vigueur 
• Le terrain
Cet estimation inclue les frais notaire, de raccordement, de branchement, ainsi que taxes, frais et assurances 

✨ Pourquoi choisir Les Maisons Cléverte ?

Constructeur local reconnu, Les Maisons Cléverte s’appuient sur une longue expérience dans la construction de maisons individuelles et proposent des prestations de qualité aux prix les plus compétitifs.

Les maisons intègrent des équipements modernes et performants, notamment :

Pompe à chaleur économique et performante.

Solution domotique permettant la gestion à distance du chauffage et des ouvrants.

Fenêtres oscillo-battantes incluses Baies coulissantes en aluminium.

Vous bénéficiez du Contrat de Construction de Maison Individuelle (CCMI), avec : Prix ferme et définitif Garantie de livraison Un accompagnement personnalisé vous est proposé, de la conception du projet jusqu’à la remise des clés.

Sous réserve d’étude du terrain, de sa disponibilité et des règles d’urbanisme en vigueur (PLU, accès, réseaux, nature du sol, dénivelé).
Des adaptations techniques éventuelles peuvent entraîner une révision du prix après analyse du projet et des options choisies.

📞 Contactez-moi – Agence de Barentin
☎️ 07 44 86 37 12
📧 barentin@cleverte.fr

Construisons ensemble votre projet. 🌐 https://cleverte.fr/

Maison EMMA 125m² à étage 4 Chambres avec garage intégré

Malaunay Terrain 500 m² 4 Chambres Étage Garage