349 000 €

Maison neuve moderne à vendre à Houppeville – Centre bourg

Maison neuve moderne à vendre à Houppeville Rue Jean Jaures (76113) – Centre bourg

Vous recherchez une maison neuve à vendre à Houppeville, proche de Rouen, avec des prestations modernes et un emplacement privilégié ?

Découvrez ce projet de maison neuve à construire, idéal pour une résidence principale ou un investissement immobilier.

Une maison neuve clé en main à Houppeville

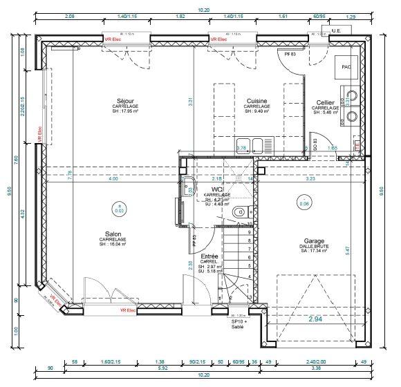
Située en plein centre bourg de Houppeville (Rue Jean Jaurès), cette maison neuve offre environ 110 m² habitables, avec garage intégré, sur un terrain de 450 m².

La maison est livrée entièrement finie et prête à habiter :
revêtements de sols, peintures, faïences, antenne TV, boîte aux lettres, accès et terrain aménagé.
👉 Aucun travaux à prévoir, tout est inclus.

Description de la maison

Au rez-de-chaussée :

  • Grande pièce de vie lumineuse d’environ 45 m²

  • Cellier

  • WC indépendant

  • Garage intégré

À l’étage :

  • Suite parentale avec salle d’eau privative

  • Deux chambres

  • Salle de bains

  • Salon d’étage modulable (bureau, salle de jeux, espace TV)

  • WC

Prestations et performances énergétiques

Cette maison neuve respecte les normes thermiques RE 2020, garantissant un excellent confort et des faibles consommations énergétiques.

  • Chauffage et eau chaude par pompe à chaleur

  • Isolation performante

  • Maison contemporaine et lumineuse

  • Confort thermique été / hiver

Un emplacement recherché à Houppeville

Cette maison bénéficie d’une situation idéale en centre bourg :

  • Écoles, commerces, transports, pharmacie et médecins accessibles à pied

  • Rouen à seulement 15 minutes en voiture

  • Environnement calme et résidentiel

Les avantages de l’achat d’une maison neuve

  • Maison neuve entièrement sous garanties (décennale, biennale, parfait achèvement)

  • Frais de notaire réduits (moins de 3 %)

  • Éligible aux aides à l’accession, dont le Prêt à Taux Zéro (PTZ)

  • Idéal pour y vivre ou investir en Normandie

Prix de la maison neuve à Houppeville

💶 Prix : 349 000 €
Soit environ 359 000 € frais de notaire inclus

Prestations personnalisables à ce jour, selon vos besoins et votre projet.

Pour plus d’informations ou pour étudier votre projet de construction :
📞 07 67 95 67 66