une maison de 3 chambres à étage et plus de 100m2.
Personnalisez et créez votre espace de vie

Avec ses 105 m², la maison MANON_105 offre un agencement moderne et parfaitement pensé pour la vie de famille.
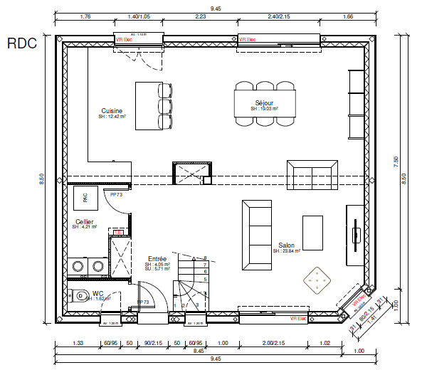
Le rez-de-chaussée accueille une grande pièce de vie lumineuse, ouverte sur la cuisine, créant un espace chaleureux et convivial pour partager les moments du quotidien.

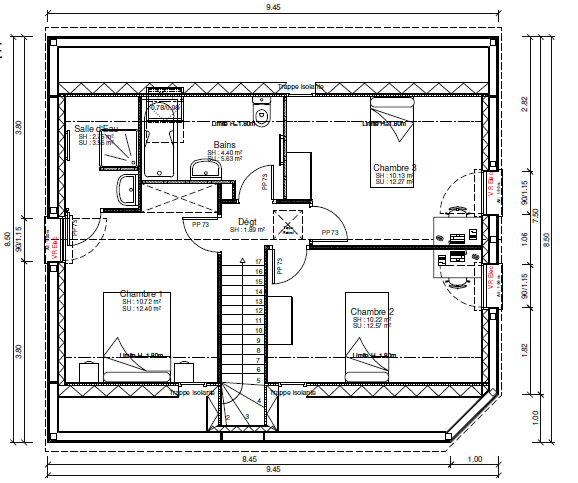
L’espace nuit, situé à l’étage, se compose de trois chambres confortables, bien réparties pour préserver l’intimité de chacun. Une salle de bains familiale et un WC indépendant viennent compléter ce niveau, apportant praticité et confort au quotidien. Une arrière-cuisine/cellier attenant à la cuisine optimise l’organisation du rez-de-chaussée.

Grâce à son plan simple et efficace, la MANON_105 s’intègre facilement sur tout type de terrains, offrant un excellent compromis entre volume, fonctionnalité et budget.

3 ch. 105m² Étage 121 560 € Plan